インフォメーション

イベント情報|モデルハウス見学会

イベント情報|モデルハウス見学会

モデルハウス見学会

間仕切りを減らして間取りが曖昧に!平屋のように暮らせる家

日程:随時受付 10時00分〜17時00分

住所:宇治市琵琶台

モデルハウス 完成見学会 予約受付中!


 

CONCEPT

平屋のように暮らせる、間取りが曖昧な家

高台に位置し、角地からの眺望が期待できる、閑静な住宅街に建つT字型のモダンな家。

「大人数の来客にも対応できる、ゆったりとしたLDKに靴の脱ぎ履きがしやすい玄関土間」
「平屋のように1階だけでも暮らせる家」
「家族が集まりやすいリビング」
「アウトドアやバーベキューなどを楽しめる家」
「明るく広く感じられる家」など、
たくさんのイメージから建築家が提案したのは、玄関ドアとLDKをひとつながりにつなげた設計。

 

モデルハウス外観
薄グレーの外壁と美しく調和しているウッドフェンス越しに、人目を気にせず楽しめるデッキスペース。
訪れたゲストにも生活感を見せないパントリーやランドリールーム。
土地の条件を最大限に活かしながら、たくさんの想いを詰め込んだモデルハウスが完成しました。

IDEA

建築家のアイデア① 玄関ドアとひとつながりにつながるLDK

玄関ドアを開けると、この家の中心部分に通常の玄関の規模を超えた土間スペースが広がり、LDKや水回り、寝室とひとつながりつながっていきます。
たくさんのゲストを招いても、ゆとりをもってもてなすことができます。

LDKとつながる玄関

 

玄関土間

中庭のある寝室とつながる玄関

 

LDKの反対側は、中庭のある寝室と水回りにつながっている。

建築家のアイデア② プライベートデッキのある外部へも緩やかにつながる

玄関土間が廻り込んでそのままリビングにもなり、外部のプライベートデッキへもゆるやかにつながっていきます。

ウッドデッキとつながるホール

 

建築家のアイデア③ イベントスペースとしても活躍するリビングには大きな造作本棚が

玄関土間からつながってそのままリビングとなっている場所に、天井いっぱいまで高さのある存在感たっぷりの造作本棚が。
イベントスペースとしても利用できるこの場所のFIX窓が圧迫感を取り除いてくれます。

 

リビングのFIX窓

 


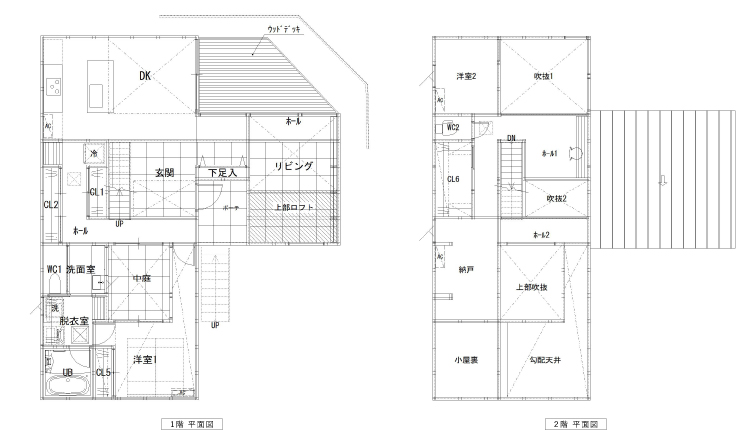
PLAN

琵琶台モデル間取り図


SPEC

■Ua値  0.42W/㎡K
■C値 0.19㎠/㎡
■断熱等級6
■耐震等級3
■長期優良住宅
■敷地面積191.23㎡
■ 延床面積 126.07㎡


POINT

■ 建築家デザイン
■ 高性能住宅
■ 家事楽動線
■ 庭とつながる
■ プライバシー確保を意識した外観



高気密・高断熱の高性能住宅であることはもちろん、パッシブデザインを取り入れた省エネ住宅を実現し、グランライフのこだわりを詰め込んだ見所満載の建築家住宅です。

性能とデザイン性が高いレベルで両立した夏すずしく、冬あたたかい住まいを実際に体感してみませんか?皆様のご来場を心よりお待ちしております。

約30秒で入力完了
イベント・見学会の
ご予約はこちら
簡単フォーム入力

    イベント名

    お名前必須


    メールアドレス
    (半角英数字)必須

    ※確認のため、再度入力してください

    電話番号必須

    住所必須

    郵便番号

    住所反映

    都道府県

    市区町村

    丁目・番地

    建物名・号室

    ご参加人数(大人)必須

    ご参加人数(子供)必須

    第一参加希望日時

    第二参加希望日時

    第三参加希望日時

    ご質問がございましたらご記入ください

    グランライフを知ったきっかけ必須

    ご予約の確定は改めてメールかお電話にてお知らせいたします。 3営業日を経過しても連絡がない場合は、何らかのトラブルと考えられます。 お手数ですが、再度お問合せいただきますようお願い申し上げます。

    内容にお間違いがなければ、当社のプライバシーポリシーに同意の上、下記の「予約申し込みをする」ボタンを押してください。