【城陽市】即入居可! 閑静な住宅街に佇む中古建て(中古一戸建)
城陽市寺田大谷にて中古一戸建てを販売中です。
●閑静な住宅街に佇む中古建て●2沿線が徒歩15分圏内!小学校まで徒歩7分!
※弊社でリフォーム・リノベーションのご相談が可能です
[グランライフのリノベーション]
リフォーム・リノベーションのご相談を承ります。
見た目を良くするデザインリノベから
住まいの性能を上げて価値を高める性能向上リノベまで
幅広く対応しています。
<利便性>
■閑静な住宅地で小さなお子様がいるご家族にも安心
■久世小学校まで徒歩7分
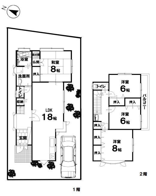
物件概要【中古一戸建物件】
販売価格 ¥2,280 万円
※表は左右にスクロールして確認することができます。
所在地
京都府城陽市寺田大谷
交通
JR奈良線『城陽』駅徒歩14分/近鉄京都線『久津川』駅徒歩15分
学区
久世小学校
販売戸数
1戸
土地面積
145.01
坪数
43.86坪
土地権利
所有権のみ
都市計画
市街化区域
用途地域
1種低層
建ぺい率
50%
容積率
80%
接道状況
アスファルト舗装
引渡し
即引き渡し可
建物面積
115.92㎡
間取り
4LDK
完成時期
(築年月)
1996年1月
建物状況
地上2階
建物構造
木造
建物階建て
2階
駐車場
カースペース
現況
空き家
取引態様
売主
周辺情報
マツヤスーパー 久津川店(881m/徒歩12分)
ファミリーマート 城陽深谷店(625m/徒歩8分)
ダックス城陽久津川店(961m/徒歩13分)
城陽市立久世小学校(672m/徒歩9分)
城陽市立東城陽中学校(954m/徒歩12分)
