完成見学会
終了
独立しているのに孤立しない、「離れ」のある家
日程:【第一期】12/20(土)~12/26(金) 10時00分〜17時00分【第二期】1/6(火)~1/12(月・祝) 10時00分〜17時00分
住所:城陽市寺田
Introduction
自宅で過ごす時間が大半のご家族。新しいお家ではワークスペースにこだわりながら、家族との距離感も大切にしたい。
建築家は、家族それぞれの想いを考慮しながら、「距離感の設計」を軸に、視線を緻密にコントロールして、
家族で過ごす時間を大切にした住まいをつくりあげました。
こちらのお家にて、この度お施主様のご厚意により、完成見学会を開催いたします。
【第一期】12/20(土)~12/26(金)【予約制】
【第二期】1/6(火)~1/12(月・祝)【予約制】(※7日(水)は定休日)
下記予約フォーム、又はフリーダイヤル0120-946-150まで、お気軽にご予約ください。
※前日や当日といった直前となるご予約につきましては、お電話にてお問い合わせください。
施主様のご要望
・間取りや導線によって、片付けなどの行動が自然と促されるようなプランにしたい
・帰宅したら顔を合わせられる導線にしたい
・リビングで勉強できる環境が欲しい
・洗濯動線が1階で完結できるようにしたい
・ちゃんと光を取り込めるようにしたい
・カーテンやブラインド無しでもプライベートを守れるようにしたい
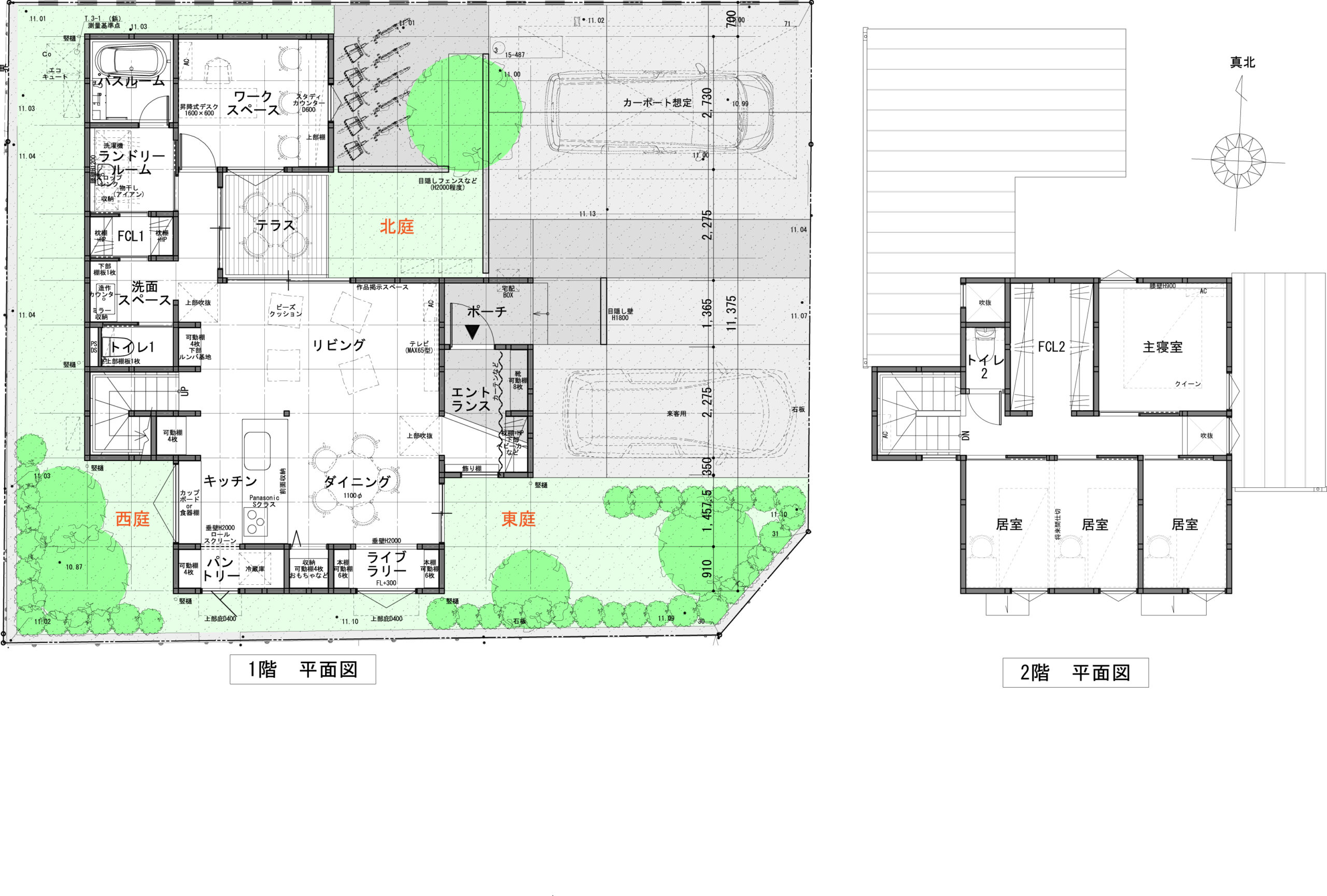
見どころ① プライバシーを確保するための3つの庭、距離の取り方
敷地は、南側と東側が2面道路になっている角地で、北側と西側には隣家が建っています。
東側は、駐車スペースや東庭を挟んでダイニングの窓を設け、視線を感じにくくしています。
南側は道路が西に向かって下がっていくので段差があるため、1階南側の窓を腰壁にしておくと、道ゆく人たちからの視線が感じにくくなります。
北庭はLDKやワークスペースにコの字に囲まれた屋外空間で、北側や西側からの視線を遮りつつ、東側道路からは駐車スペースの奥にさらに距離を取っており、よりプライベートな庭として使用できるようになります。

見どころ② ワークスペースと他のスペースとの距離と配置
基本テレワークスタイルのご主人のためのワークスペースは、独立した空間でありつつ、息が詰まらない空間とするため、できるだけ離れた場所になるように配置を考えています。
音の問題などにも考慮して、直上に2階を計画しないようにし、LDKにも隣接しないように北庭(テラス)を間に挟んで距離を確保しています。
物理的には距離を取りつつ、視覚的にはLDKの様子をワークスペースから伺えるように窓を設けました。
また、子どもたちのスタディカウンターもワークスペース内に設けて、こども達も一緒に集中できるスペースとなっています。

見どころ③ 外とつながるLDK
LDKは、北庭(テラス)、東庭、西庭に囲まれた場所になっているので、光を取り入れやすく、広がりを感じる計画になっています。
2箇所の小さな吹抜からも、東や西からの光が柔らかく届きます。
ダイニング横のライブラリーは、LDKと外をつなぐ場所になっており、本を手に取りやすい計画となっています。


見どころ④ まとまった水回り
水回りは西側にまとめており、頻繁に利用するものを収納するFCL1をランドリールームと洗面スペースの間に計画しています。
ウォークスルーできるようになっているのでとても使い勝手が良いです。
階段を上がって近いところにFCL2を設け、ランドリールームからの洗濯動線に配慮しています。
今回の建築家
.png)
川勝崇道 (Kawakatsu Takamichi)
Kawakatsu Design(京都府)
どんな部屋がいくつ必要といったことよりも、まずどんな生活をしたいかを
自由にイメージしていただいて、それを伝えていただきたいと思います。
そうすることで、最初に限定されず、たくさんの可能性が生まれると思います。
たくさんの可能性の中から、一緒に最適なものを探して行きたいと思います。
1980年 京都生まれ
2004年 山口大学工学部感性デザイン工学科卒業
2006年 京都工芸繊維大学大学院修士課程修了
2006~2011年 横河設計 工房(横浜)
2012年1月 Kawakatsu Design設立(横浜にて)
2012年12月 事務所を京都に移転
建築情報
■敷地面積:213.26㎡(64.51坪)
■延床面積:102.48㎡(31.02坪)
■Ua値 (断熱性能)0.40W/㎡・K
■C値(気密性能)0.23㎠/㎡
■断熱等級6
■耐震等級3
■長期優良住宅
こんな方にオススメ
・平屋が気になっている方
・家事楽で暮らしやすい間取りを探している方
・性能もデザインも妥協したくない方
・自分たちの暮らしに合った家づくりにこだわりたい方
・変形地や難しい敷地条件をお持ちの方
外とつながるLDK、離れているのに孤立しないワークスペース、
水まわりがすっと整う動線計画。
建築家が細かく計算した“距離感の設計”が、家族のつながり方をやさしく変えていきます。
イベント詳細
■【各回1組様限定】のご案内となります。
■ 日時①:12/20(土)~ 12/26(金)
日時②:1/8(木)~ 1/12(月・祝)
※前日や当日といった直前となるご予約につきましては、お電話にてお問い合わせください。
■ 会場:城陽市寺田
(ご予約後に詳細をお伝えします)
モデルハウスではなく、実際に建てられたオーナー様邸をご覧いただける貴重な機会。
写真では伝えきれない“本物の空気感”を、ご体感ください。
高気密・高断熱の高性能住宅であることはもちろん、パッシブデザインを取り入れた省エネ住宅を実現し、グランライフのこだわりを詰め込んだ見所満載の建築家住宅です。
性能とデザイン性が両立した住まいを実際に体感してみませんか?皆様のご来場を心よりお待ちしております。
約30秒で入力完了
イベント・見学会の
ご予約はこちら
簡単フォーム入力
